Property description
This villa has a Renovation price tag, for investors who see value in small renovations. (or big, whatever the upgrade involves.)
The upgrade could involve in new pool tiles, new airco, new paint and furniture.
Land Value approx 85.000 Baht per wah. land size 262.5 wah, gives a rough figure of 22 mil baht for land.
Build up Value: 450 sqm at minimum of 30K/sqm =13.5 million
So we are looking at roughly 35 million Baht value.
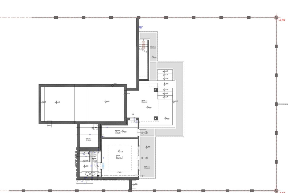
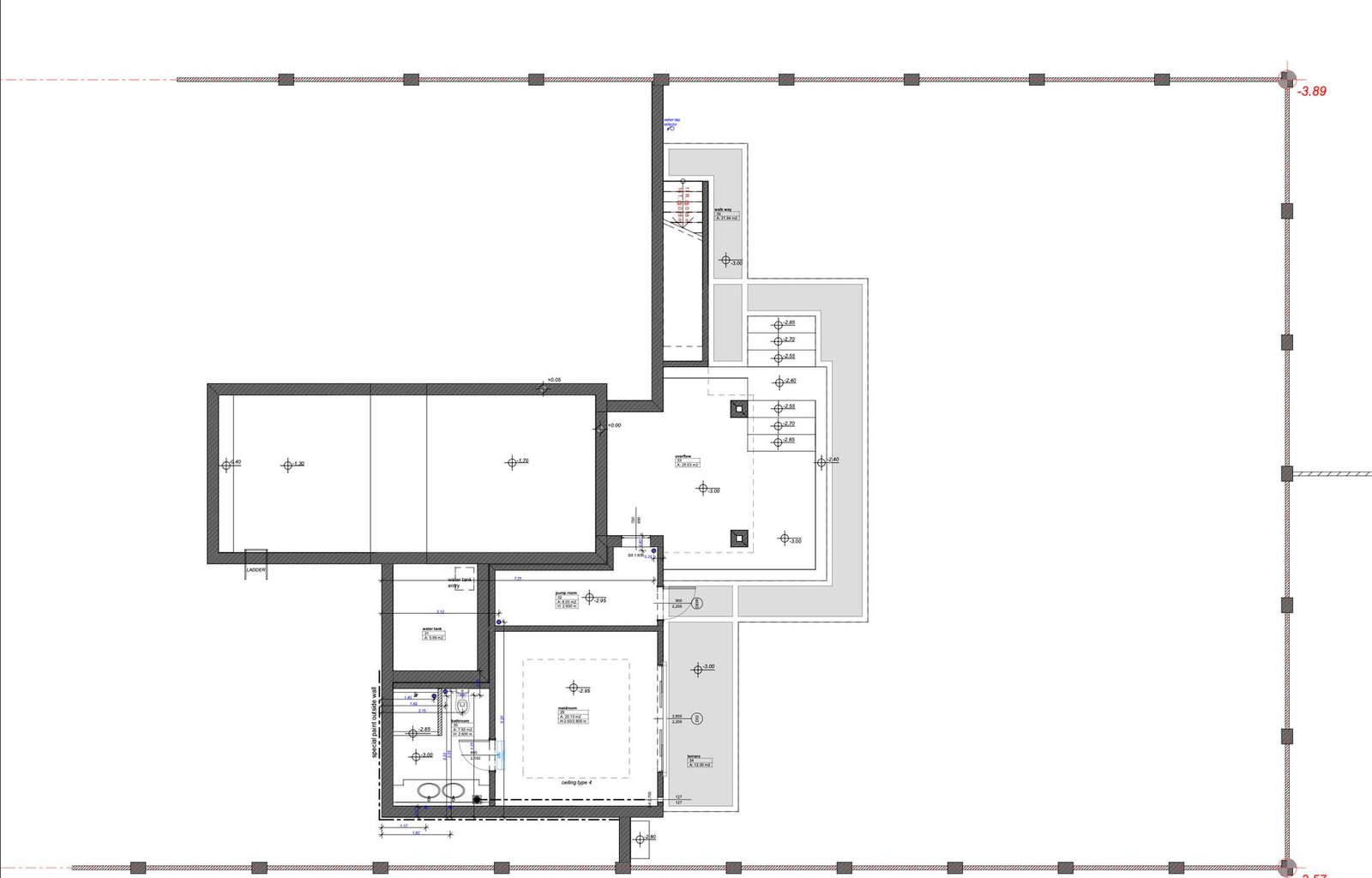
See floorplans for idea.
Viewings 1 day advance notice.
-4 Bedrooms
-5 Bathrooms
-Laundry Room
-Open Kitchen with Dining area
-Storage Room x2
-2 Level Landplot
-Outdoor Terrace
-Big Garden on the lower floor
Features
Floor Plans
Similar Listings
Our Newest Listings
Pool Villa at Beachfront Village Na Jomtien
Sattahip, Baan Amphur- 300 m²
- 296 m²
- Beds: 3
- Baths: 3
Frequently Asked Questions
Can I schedule a private tour of this property?
Yes, absolutely. You can request a private showing directly through the “Schedule a Tour” form, or contact me to arrange a personalized visit at your preferred time.
What is included in the listing price?
The listing price reflects the property itself. Furniture, fixtures, or additional amenities may vary depending on the seller. Full details will be provided during your consultation.
Is financing or mortgage assistance available?
Yes. I can connect you with trusted mortgage advisors and local financial institutions that specialize in luxury property financing.
How do I make an offer on this property?
Simply click on the “Request Information” or “Make an Offer” option on the property page, and I will guide you step by step through the negotiation and offer process.















